• Projekte
  • Philosophie
  • Leistungen
  • Vita
  • Kontakt
  • dachcubes Berlin
  • Projekte
  • Philosophie
  • Leistungen
  • Vita
  • Kontakt
  • dachcubes Berlin
büro für architektur | Hardy Krüger
  • Projekte
  • Philosophie
  • Leistungen
  • Vita
  • Kontakt
  • dachcubes Berlin
  • Projekte
  • Philosophie
  • Leistungen
  • Vita
  • Kontakt
  • dachcubes Berlin

Hegermühlenstr. 5

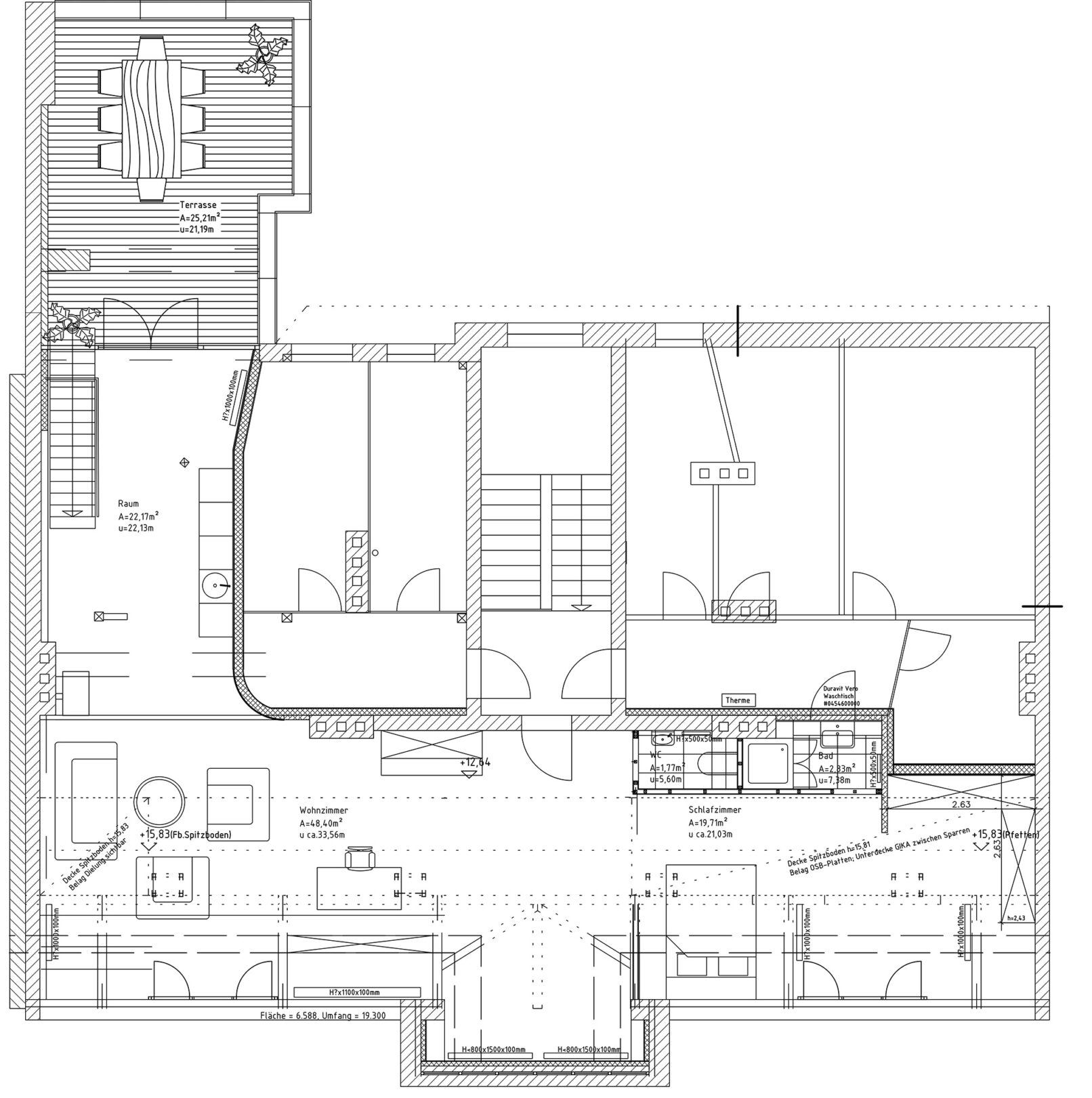
Das zur altansässigen Bäckerei Nemela in Strausberg gehörige Dachgeschoss Ihres Wohn- und Geschäftshauses wurde als Maisonette ausgebaut, mit direktem Blick auf den Straussee und die umliegenden Wälder. Dabei wurde auf Grundrissflexibilität Wert gelegt, sodass der Dachgeschossteil mit wenigen Umbauten auch als separate Wohnung nutzbar ist. Auf der Rückseite wurde eine großflächige Terrasse zum grünen Mühlengrund hin geschaffen.

 

 

Kategorie: Dachgeschossausbau
Lph.: 1 – 8
Zeitraum: 10. 2001 – 12. 2004
Ort: Hegermühlenstr. 5, 15344 Strausberg

 

 

 

 

 

Ausgangszustand

Impressum →
Datenschutzerklärung →
© 2025 Hardy Krüger
Alle Rechte vorbehalten.